Taman Sejati Utama, the 17.07-acre project will feature residential and commercial properties.
This mixed development comprises a total of 144 units modern façade design semi-d, shop offices and a hotel within the established and matured residential precincts of Sitiawan, Manjung.
The development consists of :-
1) 3 Storey Shop - 106 units
2) 4 storey shop - 6 units
3) 2 Storey Semi-D - 26 units
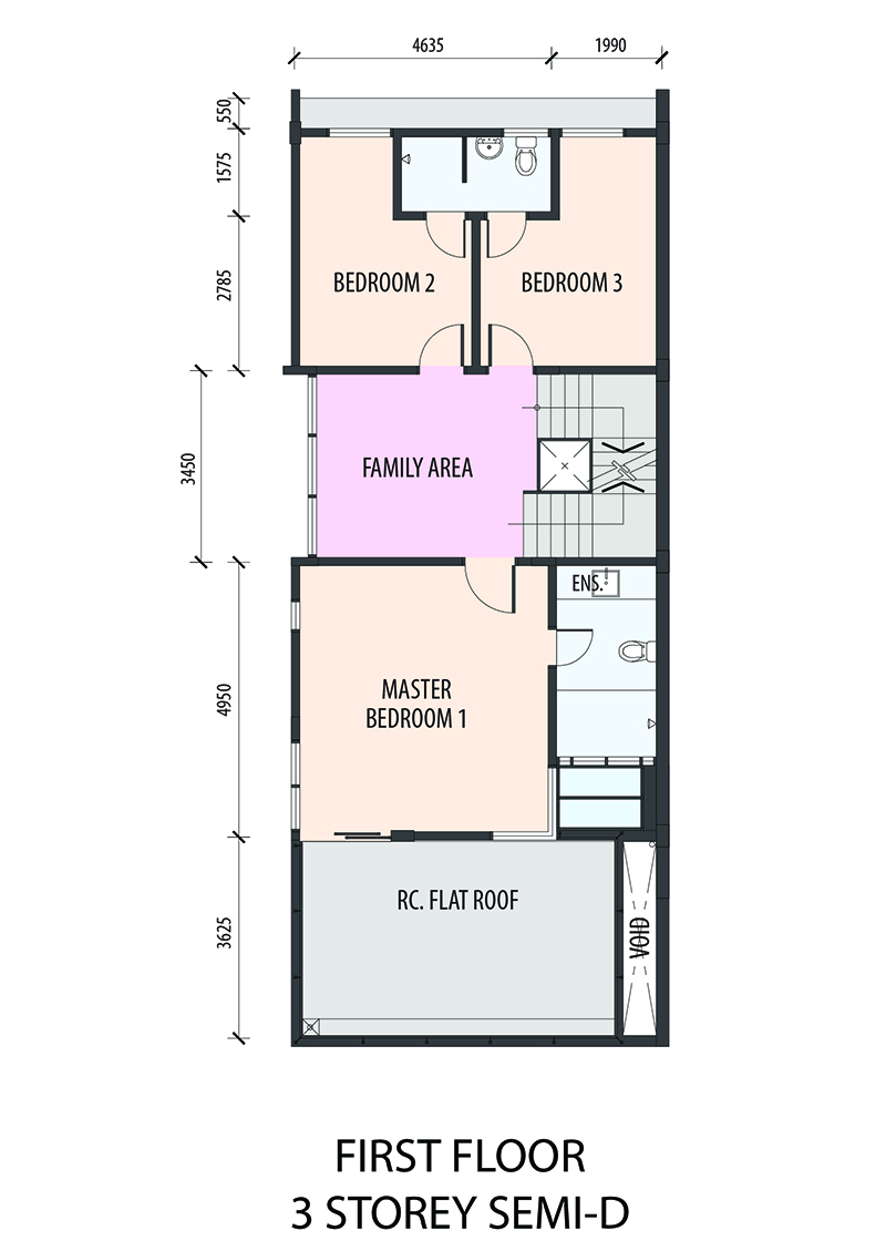
4) 3 Storey Semi-D - 6 units
5) 1 Hotel
This development is strategically located on a freehold land next to Tesco, and 3 min away from AEON within the district of Sitiawan. It enjoys excellent connectivity to Jalan Lumut, Jalan Sitiawan and Jalan Iskandar Shah.
| Structure | Reinforced Concrete | |
| Brickwork | Clay Bricks / Cement Sand Bricks | |
| Roofing | R.C Flat Roof With Waterproof / Metal Decking Roof | |
| Ceiling | Skim Coating And Paint | |
| Windows | Aluminium Framed Glass Windows | |
| Doors | ||
| Main Entrance | Solid Timber Door, Aluminium | |
| Others | Timber Flush Doors | |
| Lock | Quality Locksets | |
| Floor Finishes | ||
| Shop Area | Cement Render | |
| Office | Cement Render | |
| Toilet | Ceramic Tiles | |
| Staircase | Ceramic Tiles | |
| Walkway | Ceramic Tiles | |
| Wall Finishes | ||
| Toilet | Ceramic Tiles 7' 0'' Height | |
| Others Area | Emulsion Paint | |
| Sanitary Fittings | Type A (3 Storey) (Intermediate) |
Type F (4 Storey) (Corner) |
| Toilet | ||
| Water Closet | 3 | 4 |
| Squatting | 3 | 4 |
| Wash Basin | 6 | 8 |
| Tap Point | 10 | 13 |
| Electrical Outlets | ||
| Ceiling Light Points | 26 | 57 |
| Fan Point c/w Fan Hook | 3 | 4 |
| 13A Switch Socket Outlets | 18 | 21 |
| Air-Conditioner Points | 6 | 12 |
| Telephone Point | 3 | 4 |
| Emergency Light Points | 10 | 15 |
| KELUAR Sign Points | 3 | 6 |
| Structure | Reinforced Concrete | |
| Brickwork | Clay Bricks / Cement Sand Bricks | |
| Roofing | R.C Flat Roof With Waterproof / Metal Decking Roof | |
| Ceiling | Skim Coating And Paint | |
| Windows | Aluminium Framed Glass Windows | |
| Doors | ||
| Main Entrance | Solid Timber Door, Aluminium | |
| Others | Timber Flush Doors | |
| Lock | Quality Locksets | |
| Floor Finishes | ||
| Living & Dining | Ceramic Tiles | |
| Bedrooms | Laminate Timber Flooring | |
| Bathrooms & Kitchen | Ceramic Tiles | |
| Washing Area | Ceramic Tiles | |
| Balcony | Ceramic Tiles | |
| Wall Finishes | ||
| Bathroom & Kitchen | Ceramic Tiles (Ceiling Heights) | |
| Others Area | Emulsion Paint | |
| Sanitary Fittings | Type A (2 Storey) |
Type B (3 Storey) |
| Bathrooms | ||
| Water Closet | 3 | 5 |
| Wash Basin | 3 | 5 |
| Shower Rose | 3 | 5 |
| Tap Point | 10 | 14 |
| Single Bowl Drainer Sink | 1 | 1 |
| Electrical Outlets | ||
| Ceiling Light Points | 22 | 30 |
| Fan Point c/w Fan Hook | 3 | 7 |
| 13A Switch Socket Outlets | 17 | 25 |
| Air-Conditioner Points | 2 | 3 |
| Water Heater Points | 2 | 4 |
| Telephone Jack Outlet Point | 1 | 1 |
| MATV Point | 2 | 3 |
| Door Bell Point | 1 | 1 |

Malaysia